Einfamilienhaus in Lehre
- 485.000 € VB
Zum Objekt
Objektbeschreibung:
Dieses charmante Einfamilienhaus in 1,5-geschossiger Bauweise vereint zeitlose Architektur mit einem behaglichen Wohngefühl. Die Fassade besticht durch die harmonische Kombination aus klassischem Putz im Erdgeschoss und einer stilvollen Schieferverkleidung im Dachgeschoss. Auf einer großzügigen Grundstücksfläche von 619 m² stehen Ihnen ca. 140 m² Nutzfläche (nach DIN 277) zur Verfügung, ergänzt durch mehrere Garagen – darunter eine Doppelgarage mit installierter Wallbox (AC, 10 kW).
Im Erdgeschoss entfaltet sich das Herzstück des Hauses: ein lichtdurchfluteter Wohn- und Essbereich, der Raum für gemeinsame Stunden und geselliges Beisammensein bietet. Die moderne Küche (Nolte, erneuert 2024), ein Gäste-WC (2012 modernisiert) sowie der Hausanschlussraum und ein Abstellraum runden das Raumangebot auf dieser Ebene ab. Im Dachgeschoss erwarten Sie ein gemütliches Schlafzimmer, ein Arbeitszimmer sowie ein großzügiges Kinderzimmer und ein stilvoll erneuertes Badezimmer (2013). Die drei Velux-Dachfenster (Bad 2013, Schlafzimmer 2021, Treppenaufgang 2025) sorgen dabei für eine angenehme, natürliche Belichtung und schaffen zu jeder Tageszeit eine freundliche, einladende Wohnatmosphäre – das Fenster im Treppenaufgang ist zusätzlich mit einer solarbetriebenen Jalousie ausgestattet.
Das im Jahr 1998 erbaute Haus wurde fortlaufend gepflegt und modernisiert: Die Heizungsanlage wurde 2014 erneuert und verfügt über einen 200-Liter-Warmwasserspeicher. Sämtliche Innentüren wurden 2006 in Buche ausgeführt, ebenso wurde die Treppe 2025 hochwertig in Buche neu gestaltet. Ein praktischer Gartenschuppen (ca. 3 x 3 m) ergänzt das Angebot. Darüber hinaus sorgt der Glasfaseranschluss (Deutsche Glasfaser) für eine moderne und zukunftssichere Infrastruktur.
Der liebevoll angelegte Garten bildet eine grüne Oase der Ruhe und Erholung. Eine ökologische und wassersparende Bepflanzung mit zahlreichen Sträuchern sowie insgesamt 10 gewachsenen Bäumen mit einer Höhe von bis zu 6 Metern schafft eine natürliche, gewachsene Atmosphäre. Sämtliche Beete sind stilvoll mit Naturstein eingefasst. Die überdachte Terrasse (2021, KD-Dächer) lädt zu entspannten Stunden im Freien ein, während der eingelassene Pool mit einem Durchmesser von 4 Metern, einer Granitumrandung, einer Tiefe von ca. 1,5 Metern sowie einer Solarheizung das Gesamtbild dieses besonderen Zuhauses perfekt abrundet. Die Immobilie liegt in einer angenehm ruhigen Wohngegend von Lehre und ist über eine private Zuwegung erreichbar, was ein hohes Maß an Ruhe und Privatsphäre gewährleistet. Eine zusätzliche Zufahrt führt in den hinteren Grundstücksbereich und ermöglicht einen komfortablen Zugang zu einer weiteren Garage.
Lagebeschreibung:
Die Lage verbindet naturnahes Wohnen mit einer sehr guten Infrastruktur. In einem Umkreis von etwa 500 Metern befinden sich mehrere Kindergärten, eine Grundschule sowie eine weiterführende Schule. Einkaufsmöglichkeiten, medizinische Versorgung, Banken, gastronomische Angebote sowie eine Bushaltestelle mit regelmäßigen Verbindungen nach Braunschweig und Wolfsburg sind ebenfalls schnell erreichbar. Die umliegenden Wald- und Grünflächen laden zu erholsamen Spaziergängen und Freizeitaktivitäten ein und sind in kurzer Zeit fußläufig erreichbar. Gleichzeitig profitieren Sie von einer hervorragenden Verkehrsanbindung – die Autobahnen A2 und A39 sind in wenigen Fahrminuten erreichbar und sorgen für eine schnelle Anbindung an die umliegenden Städte.
Details
Ausstattung
- 3-adrige Elektrik
- Badewanne
- Bäume im Garten
- Dusche
- Einbauküche
- Eingelassener Pool im Garten
- Garagen
- Garten
- Gäste WC
- Geflasterte Einfahrt
- Glasfaseranschluss
- Heizungsanlage mit 200-Liter-Warmwasserspeicher
- Innentüren Holz (natur)
- Kunststofffenster (weiß) mit Isolierverglasung
- Massivbauweise
- Mischfassade – Putz (EG) und Schieferplatten (DG)
- Satteldach
- Terrasse
- Überdachter Eingangsbereich
- Velux Dachflächenfenster
- Wallbox (AC, 10 kW)
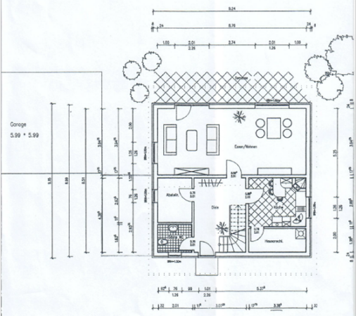
Grundrisse
- Wohnen/Essen, Küche, HAR, Diele, Abstellraum
- Gäste WC (Waschtisch und WC)
Energieklasse
-
Energieeffizienzklasse: A+
-
Endenergieverbrauch/-bedarf: 27,7 kWh/(m²*a)
-
Primärenergieverbrauch/-bedarf: 30,5 kWh/(m²*a)
-
Heizungsart: Gasheizung
-
Hauptenergieträger: Erdgas
-
Baujahr der Heizung: 2014
- 27,7 kWh/(m²*a) | Energieeffizienzklasse A+A+
- A
- B
- C
- D
- E
- F
- G
- H
Adresse
Haftungsausschluss und rechtlich Hinweise:
Die in diesem Exposé enthaltenen Angaben zu der angebotenen Immobilie, wie z.B. Größe, Ausstattung, Lage, Mietverhältnisse und Zustand, wurden sorgfältig und nach bestem Wissen und Gewissen zusammengestellt. Sie beruhen auf den uns vom Eigentümer bzw. Dritten zur Verfügung gestellten Informationen. Eine Haftung für die Richtigkeit, Vollständigkeit und Aktualität der Angaben kann jedoch nicht übernommen werden. Es wird darauf hingewiesen, dass Abweichungen in den Angaben, insbesondere in Bezug auf Flächenmaße, Ausstattungsdetails oder bauliche Veränderungen, nicht ausgeschlossen werden können. Der Käufer ist daher verpflichtet, die Angaben im Exposé eigenständig zu überprüfen und ggf. durch einen Fachmann (z.B. Gutachter) bestätigen zu lassen. Alle im Exposé genannten Preise, Konditionen und Informationen sind unverbindlich und können jederzeit ohne vorherige Ankündigung geändert werden. Ein rechtsverbindlicher Kaufvertrag kommt erst mit der Unterzeichnung eines notariell beurkundeten Kaufvertrags zustande. Für etwaige Schäden, die durch die Nutzung der Informationen dieses Exposés entstehen, übernehmen wir keine Haftung Eine Weitergabe der Objektdaten an Dritte ist ohne Zustimmung des Maklers nicht zulässig. Bei Zuwiderhandlung ist der vermittelnden Immobilienfirma Schadensersatz, in Höhe der im Exposé ausgewiesenen Provision zu zahlen. Die FIBAV Immobilien GmbH behält sich zudem ggf. das Recht vor, weitere Schadensersatzansprüche geltend zu machen